Summary
A 3D modelling project creating detailed 3D renders of C5 Alliance’s Business Continuity Suites.
Business continuity suites are fully equipped backup office spaces that allow organisations to quickly resume operations if their main workplace becomes unavailable due to an emergency such as a natural disaster or cyber attack.
Completed in half the planned time, the models and renders enabled clients to explore and understand the spaces virtually and helped C5 market their facilities earlier than expected.
Brief
The business needed a way to showcase its five Business Continuity Suites to potential clients before they were physically set up. Each suite was an empty room, and because the equipment and layouts would only be purchased and installed once a client signed a contract, photos or tours were not an option.
The goal was to find a way to help clients understand the spaces, visualise how they could be configured, and build confidence in the facilities without requiring physical setup or site visits.
Solution
We created detailed 3D models of all five suites to showcase realistic, fully equipped environments. The renders provided a clear visual experience for clients, allowing them to explore potential layouts and understand the available space before any physical setup. This approach gave C5 a cost-effective way to present their facilities and helped accelerate client engagement and sales conversations.
We included detailed visualisations in each suite showing emergency lighting, fire exits, fire extinguisher placements, doorways, conduits, and cable management, all laid out to respect local building and physical accessibility regulations.
Process
Understand architectural plans and documentation.
Onsite visit to measure other details not included in architects plans such as lighting and visual context.
Model buildings and architecture in Google SketchUp.
Import buildings into Cheetah3D.
Add objects and fine details.
Apply textures.
Add lighting.
Render scenes.
Post process scenes.
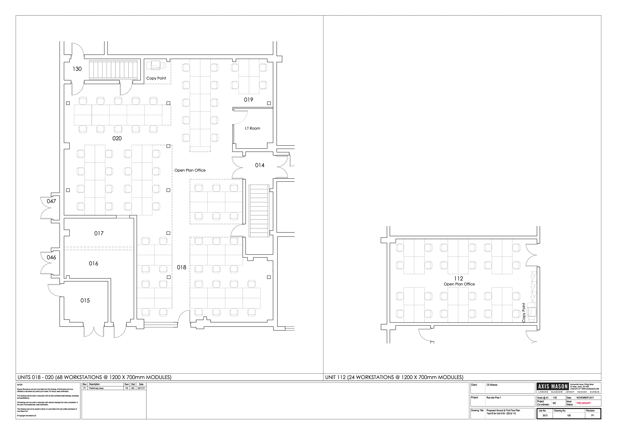
Architectural plans
Architectural and structural plans provided the foundation for the 3D models. These diagrams detailed room dimensions, layouts, and key building features, ensuring every render aligned precisely with real-world specifications. They also allowed us to explore multiple layout options and maintain accuracy across all visualisations.
3D Modelling buildings & architecture
Architectural plans were translated into detailed 3D models using Google SketchUp, accurately recreating the building structure and key architectural elements such as beams, conduits, AC units, doors, windows, server stacks, and storage areas. Each component was built to scale with a focus on precision and clean low-poly geometry.
Larger structural features were modelled directly in SketchUp, while smaller interior elements were prepared separately for later integration and rendering in Cheetah3D.









Details & composing scenes
The 3D building models were imported into Cheetah3D for scene assembly and refinement. This stage added flooring, ceilings, lighting, workstations and smaller interior details to complete each environment.
Textures and materials were applied to create realistic finishes, and lighting was balanced to ensure accurate representation of depth, scale and atmosphere.







Final renders
A small selection of the final renders are shown below.
The completed scenes were rendered in Cheetah3D and refined in post-processing. Each image was colour graded in Photoshop to ensure visual consistency and a cohesive presentation.
The final renders showcased realistic lighting, textures and spatial detail, creating a clear and professional representation of the Business Continuity Suites.








Outcomes
Revenue
£2m+
Enabled by early visualisation and client engagement.
Time & budget
~50%
Project complete in half the planned time.
Areas for improvement
Soften and balance shadows for a more natural look.
Adjust lighting to reduce overexposed highlights.
Create a reusable exterior environment for visible window views.
Add smaller scene details such as laptops and keyboards to enhance realism.







